or Call: 414-571-8345

Drag Racing Products

Suspension Arms Load Sensor

Suspension Arms Load Sensor

Suspension arms can be modified for reading the actual load. We install precision strain gages and calibrate them for V-Net connection into your (or other) data acquisition system. Axle torque and wheel tractive force can be calculated when installed on 4-Bar suspension. Left/Right side forces can be viewed and correlate launch dynamics for a deeper understanding.

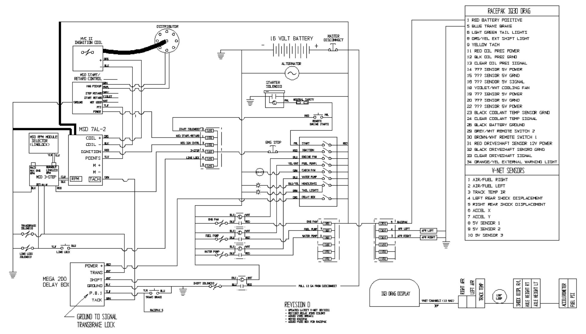
Schematic Down Loads

Autocad DXF files are available for a typical drag car’s electrical systems.  Call or email for creation of a schematic for your car.

Downloads:

Drag Electrics - White Background (PRT)

Drag Electrics - White Background (JPG)

Drag Electrics - Black Background (JPG)

Drag Electrics - White Background (PDF)

Drag Electricss - Black Background (PDF)

 

Air Speed Sensor

Wind Speed Sensor

Verify the air speed over wings or other aerodynamics devices with this sensor. Don't just guess with Aerodynamics! Air speed sensor calibrated for direct connection into your system using the V-Net interface.